Description
Tiny Modern 40 – A Stylish and Functional Tiny Home
The Modern 40 project represents a perfect balance of style, comfort, and practicality. Built as a tinny home, this model embraces simplicity while delivering all the essentials needed for modern living. With its smart layout, open design, and high-quality materials, it fits perfectly into today’s growing demand for affordable and sustainable housing solutions.
Layout and Design
The Modern 40 places strong emphasis on openness and natural light. Large panoramic windows eliminate the feeling of confinement and bring the outdoors inside. By avoiding unnecessary partitions, the design maximizes floor space and creates a seamless flow between rooms.
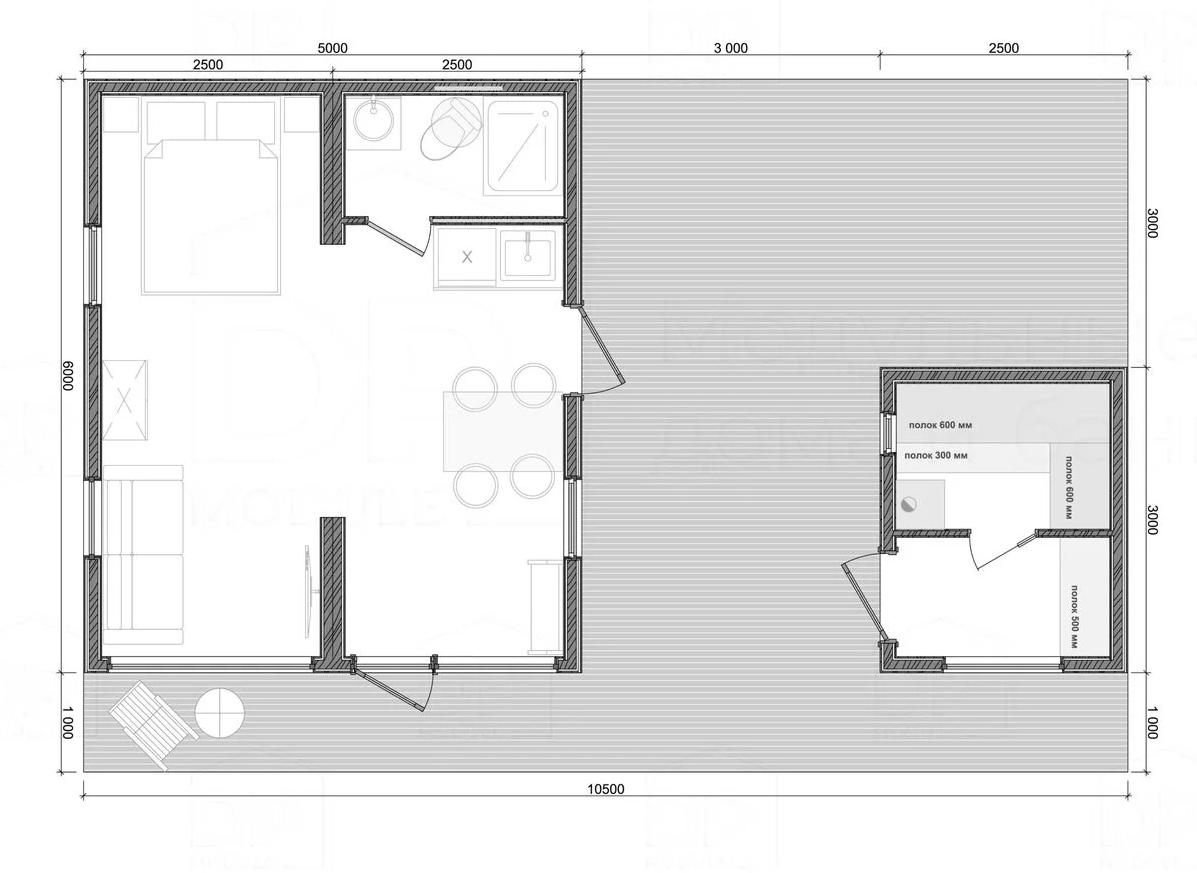
- Kitchen area connected directly to the living room for convenience and social living
- Spacious terrace, perfect for morning coffee, outdoor dining, or weekend barbecues
- Comfortable bathroom with modern fixtures
- Cozy bedroom filled with natural light
- Functional hallway to support everyday use
With a total of 73.5m², this tiny home offers the minimalist lifestyle many people desire without sacrificing comfort.
Specifications
- Project Type: Complex
- Dimensions: 10,500 x 7,000 x 2,700 mm
- Total Area: 73.5m²
Exterior and Construction
The Modern 40 stands out with strong construction and stylish finishes. It combines durability with modern aesthetics, making it suitable for different climates.
- Panoramic windows that enhance daylight and create a bright atmosphere
- Strong power frame for stability and long service life
- Exterior painting in modern tones
- Full insulation for year-round comfort and energy efficiency
- Quality doors and secure roofing
- Durable flooring for both the living space and bathhouse
Installation and Assembly
One of the greatest strengths of the Modern 40 tinny home is the quick and simple assembly process. Homeowners and investors looking for tinny homes for sale, Austin tinny homes, or movable prefab homes will find this model highly attractive. It combines affordability with modern design, making it an excellent alternative to traditional housing.
The Tiny Modern 40 is more than just a house—it’s a lifestyle choice. Whether you want a full-time residence, a vacation retreat, or an investment property, this model shows why tiny homes continue to grow in popularity across the world.















Reviews
There are no reviews yet.